Stockage grains, aliments

silo interieur sur dac

 Silo carré ou rectangulaire adapté à tout type de DAC

Compartimenté en 1/2 ou 3 cellules

Idéal pour granulés

Cliquez sur les images pour les agrandir...

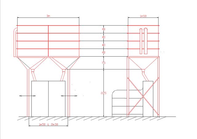
silo interieur sur dac silo DAC 3 stations 1 aliment 3m x 2m
silo DAC 3 stations 1 aliment 3m x 2m
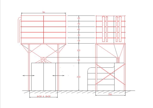
silo interieur sur dac silo DAC 2 stations 2 aliments 3m x 2m
silo DAC 2 stations 2 aliments 3m x 2m
silo interieur sur dac silo DAC 2 stations 2 aliments 2m x 2m
silo DAC 2 stations 2 aliments 2m x 2m
silo interieur sur dac silo DAC 2 ou 3 stations 1 aliment 3m x 1,5m
silo DAC 2 ou 3 stations 1 aliment 3m x 1,5m